Apartment Property

215 Queen Street #1810, Toronto (Waterfront Communities)

Details

Property ID
29031550
Status
For Sale (On market for 63 days)
Property Type
Basement
N/A
Air Conditioning
Central air conditioning
Heating Type
Forced air

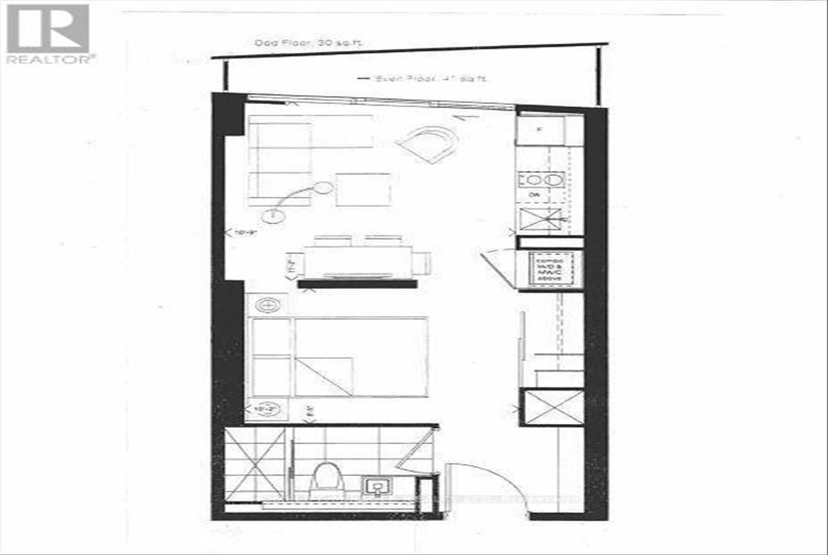
Description

Welcome To Smart House Condos Situated In The Heart Of Downtown Toronto! Features Include A Designer High-End Kitchen With Integrated Appliances And Quartz Counters, Large Balcony, Flooring Throughout, A Locker, And The Bathroom Offers A Rainfall & Handheld Shower Head. Amenities Include An Available Party Room & Meeting Room, Outdoor Patio, Concierge, And A Gym. Located On Vibrant Queen Street West & The Financial/Entertainment District, The Building's Excellent Location Provides Great Convenience With Nearby Restaurants And Cafes, Theaters & Concert Halls, Osgoode Subway Station, And The 24/7 Queen Street TTC As Well As A Short Walking Distance To The Eaton Centre, And University Of Toronto. This Well Designed Studio Condo Has A lot To Offer! (id:26457) ...

Continue Reading Show Less

Amenities

Storage - Locker

Location of the Property

215 Queen Street, Toronto (Waterfront Communities), Ontario M5A1S2

RE/MAX HALLMARK
(416) 494-7653

You like this property? Receive new, similar ones in your inbox.

We will also update you on other related information such as similar sold properties and market reports

Subscribe Now
Must be logged in to see the sold history
List Date Transaction List Price Sold/Leased Price DOM Status Transaction Date
$
per month
Principal
Down Payment
Balance at Term End

More About 215 Queen Street #1810

215 Queen Street is a Residential Property located in the city of Toronto (Waterfront Communities). 215 Queen Street has been listed For Sale at $449,000 since Oct 24 2025. This Apartment has 0 bedrooms, 1 bathrooms . Situated in Waterfront Communities C1 neighbourhood

Listing Brokerage: HOMELIFE/MIRACLE REALTY LTD

}