Detached Property

15 Bothwell Crescent , Barrie

Details

Property ID
S12490168
Status
Sold (On market for 19 days)
Property Type
Detached
Style
Bungalow
Area
700-1100 SqFt
Lot Size
55 X 110 Ft.
Parking Spaces
8
Garage Spaces
1
Taxes
$5,124 (2025)
Basement
Full, Finished
Air Conditioning
Central Air
Heating Type
Forced Air

Description

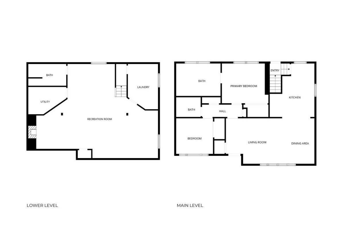
Presenting 15 Bothwell Crescent in Barrie's ultimate family-friendly Wellington community. This detached bungalow with exceptional curb appeal is situated on a beautiful street lined with mature trees and established gardens. This property's oversized lot offers a stunning resort-inspired backyard with hot tub, pool and privacy! Glass railings frame a private seating area on the front porch. From the moment you step into this home, charm and character meet you at the door! Kitchen has been renovated with stylish white shaker cabinetry, stone countertops, plenty of workspace, and cabinetry for storage - all bathed in natural light. Functional floor plan flows into the dining and living rooms - featuring a large picture window that lets in the afternoon sun. Private living zone offers two bedrooms and two complete bathrooms. Primary suite with convenience of a large ensuite. Extend your living space to the fully finished lower level that has been renovated with pot lights, new flooring, large rec room with gas fireplace, and an additional bedroom with a 4pc ensuite bath. A separate entrance to this lower level (with security door incorporated between upper / exterior / lower level) offers flexibility to create income potential - guests, extended family, home office - the choice is yours! Step outside to appreciate the stunning backyard oasis - in-ground pool, hot tub, oversized deck, garden shed - all under the canopy of mature trees (sprinkler system installed for easy maintenance!). Detached over-sized garage, EV charging station (Tesla hook-up). Welcome to this location that offers peace and serenity - steps from parks, schools, trails - minutes from key commuter routes - with easy access to all the amenities a busy household might need - shopping, services, entertainment, dining, recreation - all the four season outdoor adventures that Simcoe County has to offer! ...

Continue Reading Show Less

Amenities

Location of the Property

15 Bothwell Crescent, Barrie, ON L4M 2S7

Community Sold Statistics

Ave Sold Price

Ave Days On Market

Based on last 90 days transactions for Detached Properties in the Wellington community.

You like this property? Receive new, similar ones in your inbox.

We will also update you on other related information such as similar sold properties and market reports

Subscribe Now
Must be logged in to see the sold history
List Date Transaction List Price Sold/Leased Price DOM Status Transaction Date
$
per month
Principal
Down Payment
Balance at Term End

More About 15 Bothwell Crescent

15 Bothwell Crescent is a Residential Property located in the city of Barrie. 15 Bothwell Crescent has been listed For Sale at $749,900 since Oct 30 2025. This Detached Detached has 2 bedrooms, 3 bathrooms and is 700-1100 sqft. Situated in Wellington neighbourhood , with the nearest intersection being Grove Street E To Bothwell Crescent.

Listing Brokerage: RE/MAX HALLMARK CHAY REALTY

}